WONACH SUCHST DU?
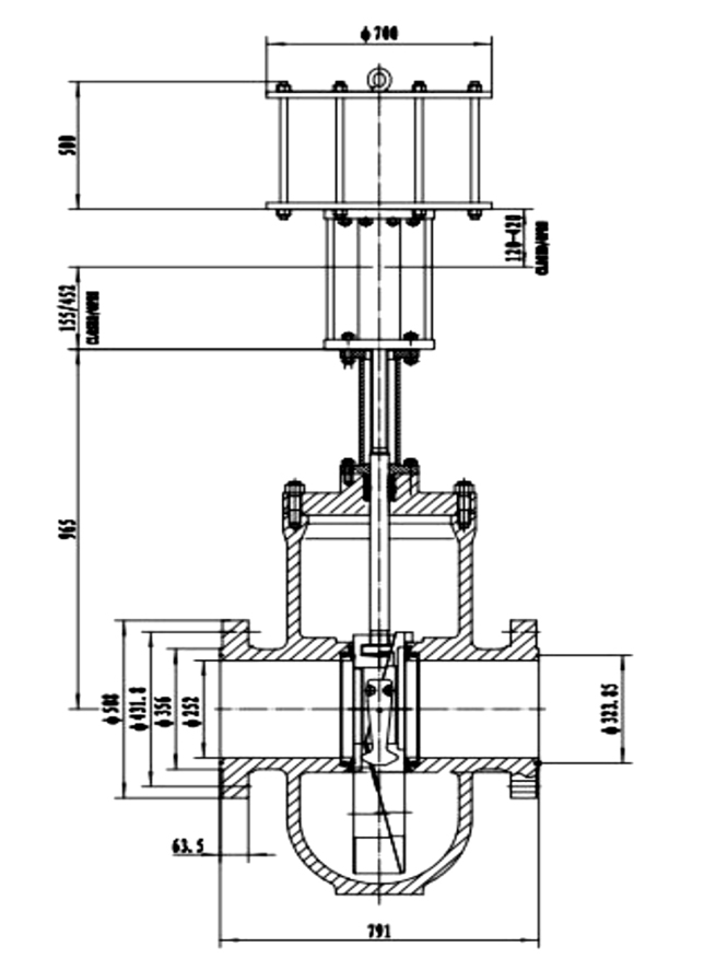
Als Antwort auf spezifische Kundenanforderungen hat GEKO Valves & Controls erfolgreich eine maßgeschneiderte Lösung entwickelt und geliefert – die 10" Doppeltür-Steuerventile für Rohöltransportleitungen. Diese maßgeschneiderte Ventillösung hat breite Anerkennung und Zustimmung von unserem geschätzten Kunden erhalten.

Präzise Ingenieurskunst: GEKO nutzte seine umfassende Expertise, um das 10"-System zu entwickeln. Doppeltür-Steuerventile mit Präzision, um optimale Kontrolle und Leistung im Kontext des Rohöltransports zu gewährleisten.
Doppeltür-Design: Durch die Doppeltür-Konstruktion wird die Fähigkeit des Ventils zur effizienten Regulierung des Rohöldurchflusses verbessert. Diese Funktion ermöglicht eine optimierte Steuerung und Reaktionsfähigkeit auf Schwankungen im Transportprozess.
Materialauswahl: GEKOs Qualitätsanspruch spiegelt sich in der sorgfältigen Auswahl der Materialien wider und gewährleistet Langlebigkeit und Zuverlässigkeit in der anspruchsvollen Umgebung des Rohöltransports.
Die individuell angepasste 10" Doppeltür-Steuerventile Die Ventile wurden strengen Tests und Bewertungen unterzogen, und der Kunde hat sich mit der Lösung vollauf zufrieden gezeigt. Sie haben eine außergewöhnliche Leistung bei der Regulierung des Rohölflusses durch die Transportpipeline bewiesen.
Optimierter Rohölfluss: Die maßgeschneiderte Lösung gewährleistet einen optimierten Rohöltransportprozess beim Kunden durch präzise Kontrolle des Rohölflusses und trägt so zur betrieblichen Effizienz bei.
Zuverlässige Leistung: GEKOs Engagement für Präzisionstechnik und hochwertige Materialien führt zu einer zuverlässigen und gleichbleibenden Ventilleistung, wodurch Ausfallzeiten und Wartungsaufwand minimiert werden.
Verbesserte Kontrolle: Die Doppeltürkonstruktion der Ventile bietet dem Kunden verbesserte Kontrollmöglichkeiten und ermöglicht so eine bessere Steuerung des Rohöltransportprozesses.
GEKO Ventile & Steuerungen Der Erfolg bei der Bereitstellung einer kundenspezifischen Lösung für 10"-Doppeltür-Regelventile unterstreicht unser Engagement, die Erwartungen unserer Kunden zu erfüllen und zu übertreffen. Die Zustimmung unseres Kunden bestätigt die Effektivität unseres maßgeschneiderten Ansatzes und positioniert GEKO als zuverlässigen Partner für spezialisierte Ventillösungen in anspruchsvollen Anwendungsbereichen. Bereich Rohöltransport. Kontakt: info@geko-union.com